ReelUp tracking pixel Read the Privacy Policy

Take me to the English site -> (under construction)

Din order

Din varukorg är tom

Ett flyttbart tiny house on wheels på 12 kvm

ℹ️  Såld

♻️ Varje projekt är ett resultat av noggrant val av material, där vi alltid strävar efter att använda återbruk och miljövänliga lösningar för att skapa hem som håller över tid.

"Urskog" är ett hus som man kan välja att ha som stuga i trädgården eller ut på resa i naturen med off grid tillval. 

 

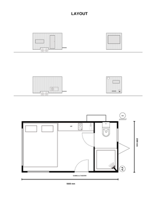
✏️ Information & layout

Ett objekt som är byggt på en stålram från arbetsvagn. Huset är vinterbonat med isolering i tak, väggar och golv med bra ventilation.

Med svart utsida för träpanel, ytterdörr och altandörr, fönster och utebelysning.

Planlösningen består av ett öppet rum med plankgolv, där du stiger in och möts av det lilla platsbyggda köket som även har en inbyggd luftvärmepump och till vänster boytan med platsbyggd sängplats där det bland annat finns ett stort treglas fönster som fyller kortsidan med ljus för en fantastisk utsikt. Rummet lyses upp med spotlights och har levande väggar i obehandlad råspont.

Till höger om entrén finner ni badrummet utrustat med varmvattenberedare, vatten WC,  PAX fläkt och en modern duschhörna. Den obehandlade råpsonten fortätter in hit och bryts av med duschhörnan som klätts in i rostfritt stål.

 

📍 Placering & anslutning

Detta objekt kan flyttas med bil och placeras där du vill. Vatten och trefas-uttag finns för snabb anslutning på ena kortsidan.

 

📏 Mått:

Längd: 5,5 m

Bredd: 2,3 m

Höjd: 2,5 m

 

💸 Pris

Detta objekt går att beställa i liknande utförande eller tillval med helt "off grid" lösningar för den som vill ta med den på resa.

Slutligt pris varierar för varje individuell modell beroende på val och inredning, kontakta oss för en offert för ditt egna Tiny home - från 375 000 kr inklusive moms.

📩 Kontakta oss för visning och mer information

📸 @hemrumstudio


Såld

"Urskog" - Såld

Ordinariepris 485 000 SEK
Pris per styck
per 
Läs mer om våra Tiny homes

Slutligt pris för ett tiny home varierar för varje individuell modell

15% rabatt - vid förköp & specialbeställningar

Ekodesign - en grund i cirkulär design för miljöns skull

Leverans - Vi hjälper er att boka leverans till er unika plats

Redo för ditt egna Tiny home? - Maila oss för en offert

Ett flyttbart tiny house on wheels på 12 kvm

ℹ️  Såld

♻️ Varje projekt är ett resultat av noggrant val av material, där vi alltid strävar efter att använda återbruk och miljövänliga lösningar för att skapa hem som håller över tid.

"Urskog" är ett hus som man kan välja att ha som stuga i trädgården eller ut på resa i naturen med off grid tillval. 

 

✏️ Information & layout

Ett objekt som är byggt på en stålram från arbetsvagn. Huset är vinterbonat med isolering i tak, väggar och golv med bra ventilation.

Med svart utsida för träpanel, ytterdörr och altandörr, fönster och utebelysning.

Planlösningen består av ett öppet rum med plankgolv, där du stiger in och möts av det lilla platsbyggda köket som även har en inbyggd luftvärmepump och till vänster boytan med platsbyggd sängplats där det bland annat finns ett stort treglas fönster som fyller kortsidan med ljus för en fantastisk utsikt. Rummet lyses upp med spotlights och har levande väggar i obehandlad råspont.

Till höger om entrén finner ni badrummet utrustat med varmvattenberedare, vatten WC,  PAX fläkt och en modern duschhörna. Den obehandlade råpsonten fortätter in hit och bryts av med duschhörnan som klätts in i rostfritt stål.

 

📍 Placering & anslutning

Detta objekt kan flyttas med bil och placeras där du vill. Vatten och trefas-uttag finns för snabb anslutning på ena kortsidan.

 

📏 Mått:

Längd: 5,5 m

Bredd: 2,3 m

Höjd: 2,5 m

 

💸 Pris

Detta objekt går att beställa i liknande utförande eller tillval med helt "off grid" lösningar för den som vill ta med den på resa.

Slutligt pris varierar för varje individuell modell beroende på val och inredning, kontakta oss för en offert för ditt egna Tiny home - från 375 000 kr inklusive moms.

📩 Kontakta oss för visning och mer information

📸 @hemrumstudio


Tiny homes

Här kan du läsa mer om våra unika Tiny homes med ekodesign.